
villaträdgårdar-Innergårdar -parker
Planering av villatomter – bostadsrättsgårdar -parker hur går det till i praktiken?
-Platsbesök först med fotodokumentation, inmätningar, genomgång av önskemål från Er. Vi bestämmer nivå på önskat arbete. Valfritt där nivå kan ändras/kompletteras vartefter.
-Alla varianter kan diskuteras, från rådgivning/enkel skiss till bygghandling. Vi är flexibla.
-Inmätning (positionering) koordinater finns tillgängligt i firman, om underlag saknas. Hushörn, träd, buskar, trappor mm.
-Säker snabb gestaltning - Framtagande av en första skiss som skickas via mejl.
-Dialog kring skissen, som ni skickar i retur med synpunkter.
-Revidering av skissen om så behövs
-Slutleverans i Autocad i form av pdf i rätt skala för utskrifter. Leverans i pdf via mejl. Utskrifter i A1 eller annat format på papper kan ordnas.
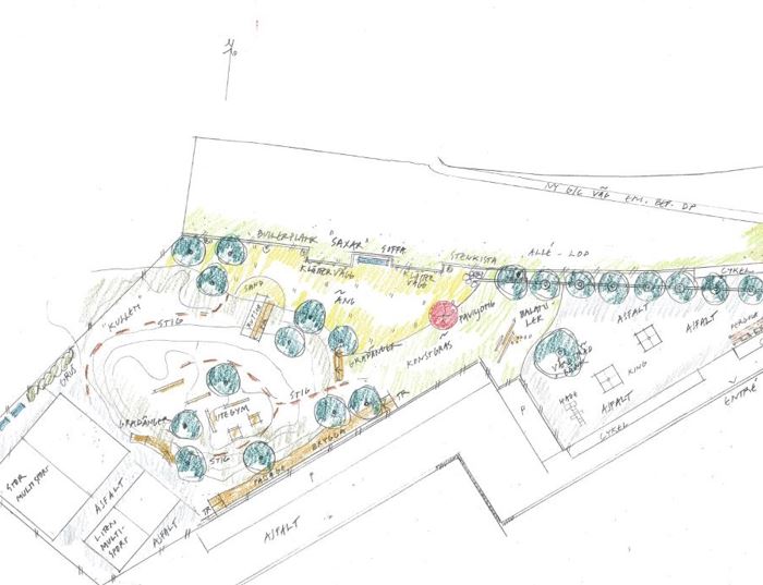
-Markplanerings- och Planteringsplan i skala 1:100 med tillhörande Teknisk Anläggnings-AMA beskrivning. Sektioner och detaljer uppritas vid behov.
-Slutprodukt inför entreprenad är ett så kallat Förfrågningsunderlag som går att prissätta. Bra när man skickar ut på räkning till olika entreprenörer.
-Vid önskemål kan vi fungera som projektledare om entreprenör ska anlitas. Vi kan även rekommendera bra entreprenörer.
-Stor vana med Bygglovshandlingar, hjälp med dialog/möten med kommunen utföres vid önskemål separat
-Spaljéer, pergolor, plank, staket och andra mindre byggda inslag i trädgård gestaltas/uppritas på begäran.
-Skötselplan för alla växter/årstider kan upprättas vid behov.
-Rådgivning gällande beskärning av träd/fruktträd
-Support (muntlig) ingår 1 år efter arbetets slut.

